TODAS LAS PLANTAS
PLANTAS descargar
OPCIONES PARA INVERTIR O VIVIR
EN UNA TORRE A OTRA ALTURA
1 DORMITORIO 2 DORMITORIOS MONOAMBIENTES LOCALES COM. DESCARGAR PLANTAS PDF

VOLVER A PLANTAS

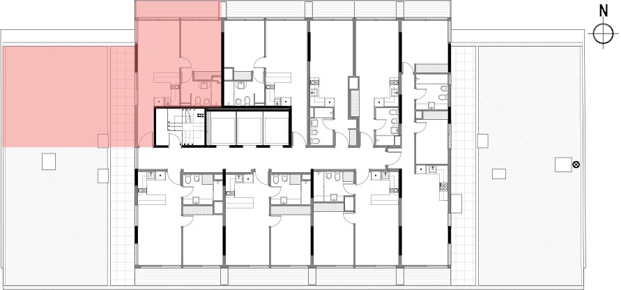
UNIDAD: 608

Ficha Técina
DORMITORIOS
1
BAÑOS
1
ÁREA CONSTRUIDA
40.30m²
ÁREA EXTERIOR
85.12m²
ÁREAS COMUNES
7.50m²
ÁREA TOTAL
132.90m²
COMPARTIR UNIDAD



La presente información es preliminar, quedando sujeta a las modificaciones que por causas técnicas, naturales o imposición de las autoridades pertinentes, pudieran ocurrir al ajustar el Proyecto Definitivo. Las imágenes pueden presentar diferencias con la versión final real, las medidas definitivas surgirán del Plano a realizar por el Ingeniero Agrimensor. La Dirección de Obra se reserva el derecho, en forma unilateral y en cualquier momento, a modificar las terminaciones que figuran en la ilustración, sin ir en detrimento del diseño ni la calidad. El mobiliario y equipamiento son de carácter ilustrativo. Antes de adquirir las unidades, solicite al vendedor/promotor la información técnica necesaria a efectos de confirmar los datos obtenidos y poder tomar una decisión informada.